Villa Simrishamn

Villa Simrishamn

Invändig yta
198 m²
Antal rum
4 st
Varav sovrum
3 st
Takvinkel
45 grader
Kontakta oss för offert →

Beskrivning

Stora fönster och underbart ljusinsläpp

Villa Simrishamn kännetecknas av rena linjer och stora fönsterpartier som släpper in ett fantastiskt ljus. Huset är ett 1,5-planshus i vinkel, utformat för att rama in er utemiljö på bästa sätt.

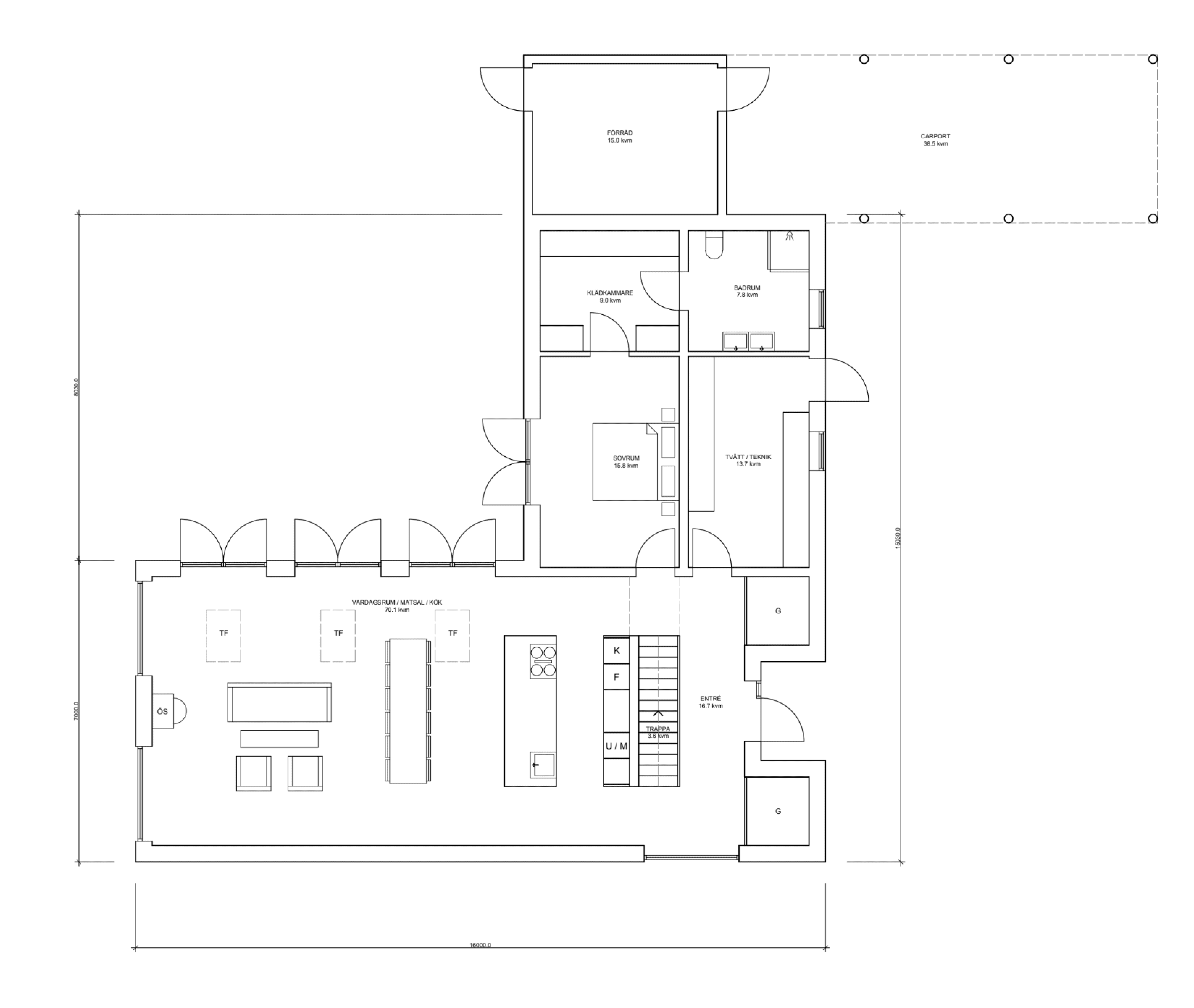
På nedre plan hittar ni en lyxig privat del med en suite, eget badrum och walk-in-closet.

Här finns även en generös öppen planlösning med kök, matplats och vardagsrum, en social yta perfekt för umgänge med vänner och familj. I den sociala ytan har ni över 6 meter i takhöjd, vilket skapar en imponerande rymd och känsla. På samma plan finns även en tvättstuga med groventré.

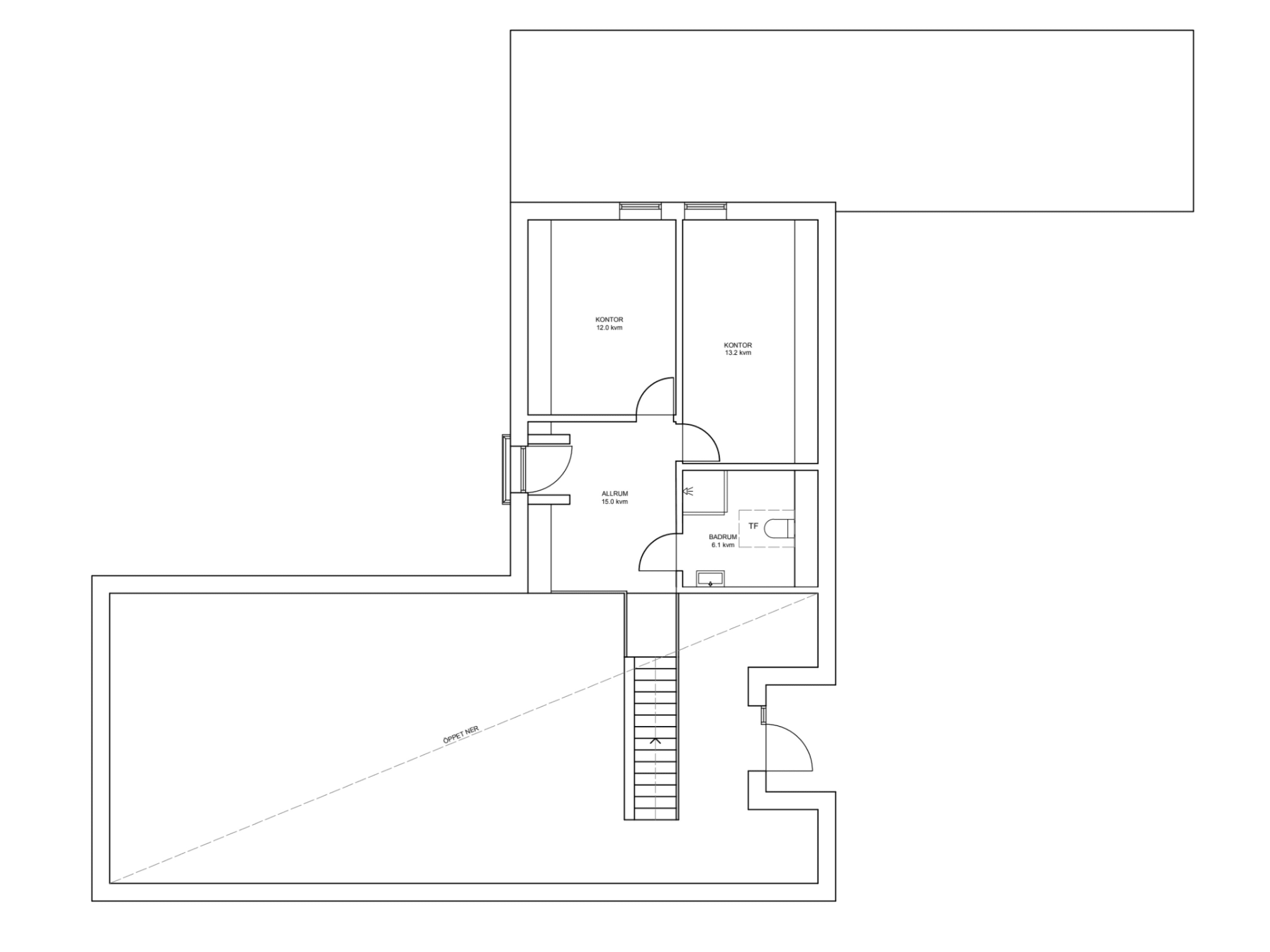
På övre plan finns två rum som kan användas som kontor, gästrum eller barnrum, samt ett allrum och ett badrum.

Villa Simrishamn är perfekt för er som vill ha ett lyxigt hem på 198 kvadratmeter, med både stil, funktion och ljus i fokus.

Bilden föreställer en tomt vid kusten som verkar vara till salu. Nordiska Villor hjälper er att köpa tomt och sälja mark.

Interiör

Bilden föreställer en tomt vid kusten som verkar vara till salu. Nordiska Villor hjälper er att köpa tomt och sälja mark.

Interiör

Planlösning
planlösning
Plan 1
Nedre plan
planlösning
Plan 2
Övre plan

Kontakta oss för offert

Drömmer ni om ett nytt stenhus? Fyll i era uppgifter så tar vi kontakt för att diskutera era önskemål och ge er en kostnadsfri offert. Vi skräddarsyr varje offert utifrån era behov och visioner – oavsett om ni har en färdig tomt, ett specifikt hus i åtanke eller bara vill veta mer om våra husmodeller. Vi ser fram emot att hjälpa er.

VICKIE NYMAN
Projektledare
010-330 76 75

2026 © Nordiska Villor - nordiskavillor.se - en del av Nymans i Sverige AB Org.nr: 559320-4166