Villa Täby

Villa Täby

Invändig yta
150 m²
Antal rum
5 st
Varav sovrum
4 st
Takvinkel
45 grader
Kontakta oss för offert →

Beskrivning

Stora fönster möter stilren minimalism!
Villa Täby är ett 1,5-planshus på 150 kvadratmeter med fem rum, varav fyra sovrum, och en generös social yta. Här får du en smart och välplanerad planlösning som utnyttjar varje kvadratmeter på bästa sätt.

På entréplanet välkomnas ni av en ljus och inbjudande hall med en vacker siktlinje som skapar en öppen och luftig känsla redan vid första steget in. Intill hallen öppnar en härlig social yta upp sig med kök, matplats och vardagsrum på hela 48 kvadratmeter och med takhöjd hela vägen upp till nock.

Entréplanet erbjuder även en lyxig masterdel med sovrum, eget badrum och walk-in-closet, en privat oas för avkoppling och vardagslyx.

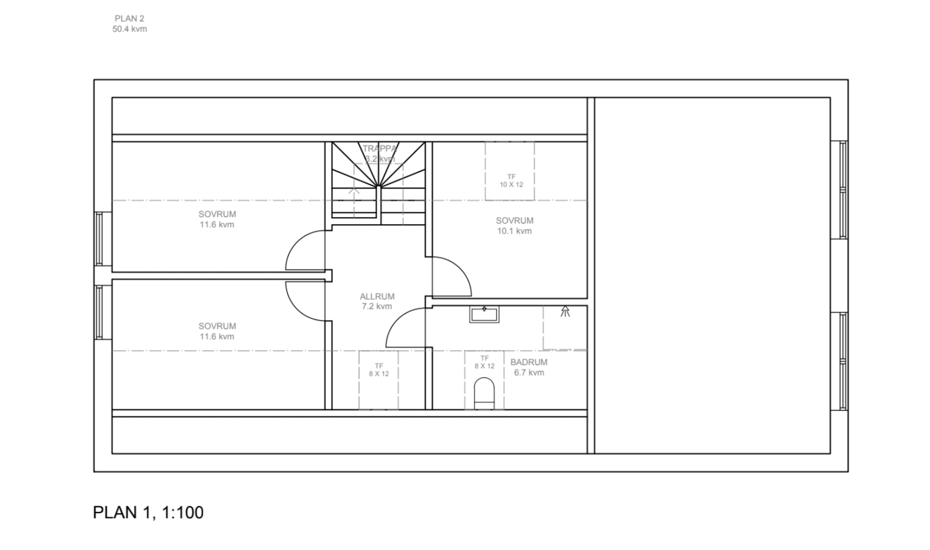
En trappa upp möts ni av ett trivsamt allrum samt tre sovrum, där ett av rummen med fördel kan användas som kontor eller gästrum. Här finns också ett rymligt och praktiskt badrum.

Villa Täby är det perfekta huset för er som söker en genomtänkt planlösning med gott om rum och ytor, ett hem där funktion möter stil i perfekt balans.

Bilden föreställer en tomt vid kusten som verkar vara till salu. Nordiska Villor hjälper er att köpa tomt och sälja mark.

Interiör

Bilden föreställer en tomt vid kusten som verkar vara till salu. Nordiska Villor hjälper er att köpa tomt och sälja mark.

Interiör

Planlösning
planlösning
Plan 1
Nedre plan
planlösning
Plan 2
Övre plan

Kontakta oss för offert

Drömmer ni om ett nytt stenhus? Fyll i era uppgifter så tar vi kontakt för att diskutera era önskemål och ge er en kostnadsfri offert. Vi skräddarsyr varje offert utifrån era behov och visioner – oavsett om ni har en färdig tomt, ett specifikt hus i åtanke eller bara vill veta mer om våra husmodeller. Vi ser fram emot att hjälpa er.

VICKIE NYMAN
Projektledare
010-330 76 75

2026 © Nordiska Villor - nordiskavillor.se - en del av Nymans i Sverige AB Org.nr: 559320-4166