Villa Hällsvik

Villa Hällsvik

Invändig yta
150 m²
Antal rum
6 st
Varav sovrum
5 st
Takvinkel
3 grader
Kontakta oss för offert →

Beskrivning

Ett tvåplanshus med det lilla extra
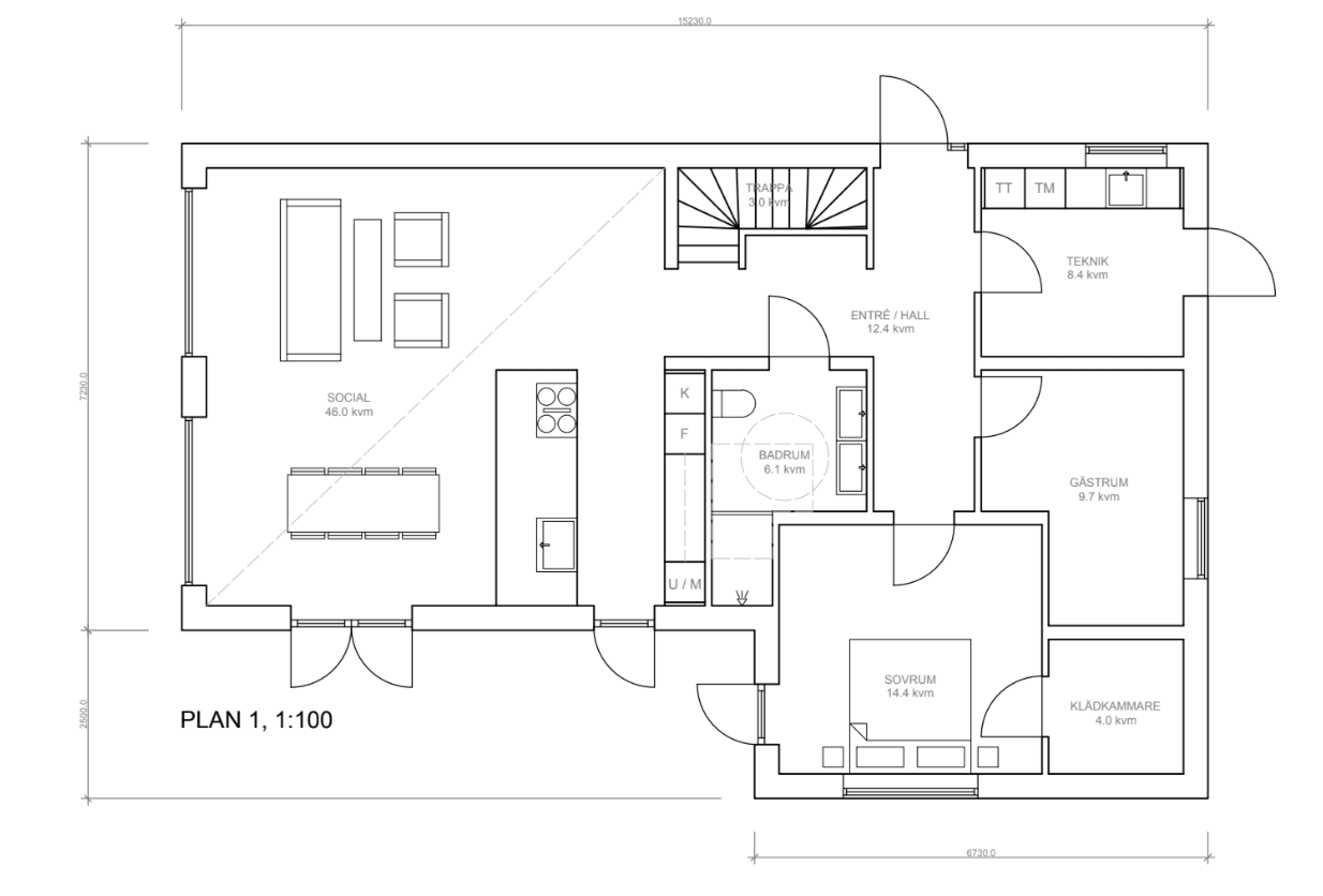
Villa Hällsvik är en vacker och välplanerad husmodell på 150 kvadratmeter, fördelat på två våningar. På nedre plan möts ni av en rymlig entré, ett stort master bedroom med egen walk-in closet, ett gästrum som enkelt kan omvandlas till ett kontor, ett anslutande badrum och en generös öppen planlösning med kök, matplats och vardagsrum. De stora fönsterpartierna i denna delen av huset släpper in ett fantastiskt ljus och ger en härlig känsla av rymd och öppenhet.

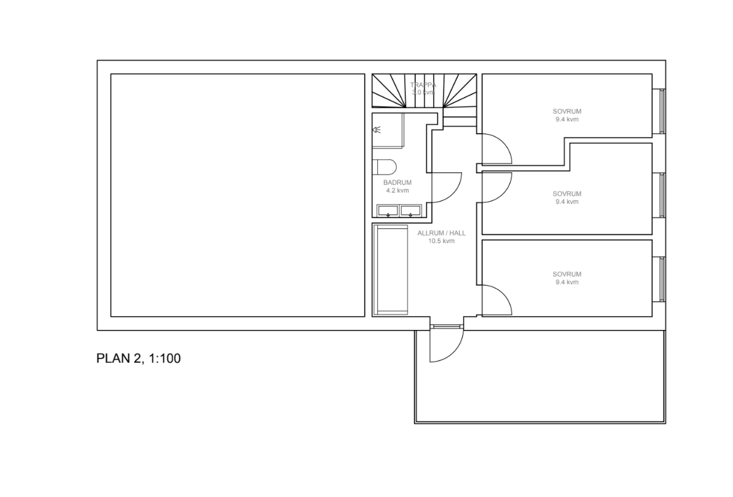
På övervåningen finns ett allrum, tre sovrum och ett badrum. Villa Hällsvik är det perfekta valet för er som söker ett hus med ett bra antal sovrum, sociala ytor fördelat på två våningar och ett lagom antal kvadratmeter för ett bekvämt och funktionellt boende.

Bilden föreställer en tomt vid kusten som verkar vara till salu. Nordiska Villor hjälper er att köpa tomt och sälja mark.

Interiör

Bilden föreställer en tomt vid kusten som verkar vara till salu. Nordiska Villor hjälper er att köpa tomt och sälja mark.

Interiör

Planlösning
planlösning
Plan 1
Nedre plan
planlösning
Plan 2
Övre plan

Kontakta oss för offert

Drömmer ni om ett nytt stenhus? Fyll i era uppgifter så tar vi kontakt för att diskutera era önskemål och ge er en kostnadsfri offert. Vi skräddarsyr varje offert utifrån era behov och visioner – oavsett om ni har en färdig tomt, ett specifikt hus i åtanke eller bara vill veta mer om våra husmodeller. Vi ser fram emot att hjälpa er.

VICKIE NYMAN
Projektledare
010-330 76 75

2026 © Nordiska Villor - nordiskavillor.se - en del av Nymans i Sverige AB Org.nr: 559320-4166